BENIDORM. El Ayuntamiento de Benidorm lleva años repitiendo que derribar Gemelos 28 no despejaría el terreno para siempre y ahora, tras una petición de la Conselleria de Medio Ambiente, Infraestructuras y Territorio, se lo demuestran incluso con imágenes. Una documentación a la que ha tenido acceso Plaza y que pone sobre la mesa las opciones de volver a construir en la zona.
Como viene contando este diario, sobre las torres de Punta Llisera pesa una orden de derribo como cumplimiento de la sentencia de noviembre de 2017, definitiva un año después. Pero tras siete años, el edificio sigue intacto y los vecinos continúan esperando para saber qué decisión se va a tomar sobre sus viviendas, algunas de ellas residenciales todo el año. La cuestión principal es que las torres ocupan una zona de dominio público servidumbre marítimo-terrestre. Pero por unos seis metros. Lo que plantea la posibilidad de que una vez derribado, se pueda levantar de nuevo pero respetando esta distancia.
En febrero de este año, el director general de Costas, Puertos y Aeropuertos, Marc García Manzana, solicitó al Ayuntamiento de Benidorm que emitiera un nuevo certificado con las condiciones urbanísticas de la parcela afectada y la posibilidad de materializar la totalidad del aprovechamiento urbanístico en la parte del suelo que se queda libre de la servidumbre de protección. El pretexto para esta consulta, según recoge la documentación, es el auto de ejecución del fallo mencionado y "el tiempo transcurrido desde entonces y la necesidad de determinar la afección a terceros que comporta la ejecución de sentencia".
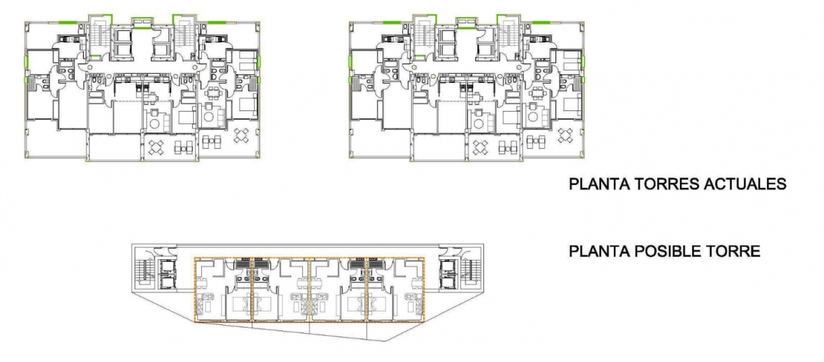
En cosencuencia, el informe del departamento de Arquitectura señala que la parcela se desarrolla dentro del ámbito de edificación abierta en grado 2. Las condiciones de volumen comportan que las edificaciones guardarán una distancia a los lindes de siete metros. Esta línea de retranqueo y la de servidumbre de protección generan el área que podría ocuparse con un nuevo residencial: en este caso, una superficie de 459,72 metros cuadrados.

Sabiendo los parámetros actuales, tanto municipales como de Costas, el área de Arquitectura comprueba que es viable materializar el aprovechamiento de la parcela adjuntando un encaje que se traduce en un edificio de 58,39 plantas, frente a los 21 pisos de cada torre de Gemelos 28. Eso sí, con apartamentos de 41 metros cuadrados de superficie útil. "El nuevo edificio podría ser una torre formada por: planta baja, mas 58 plantas de apartamentos y una planta de coronación e instalaciones técnicas en la parte superior", recoge en sus conclusiones. Además, señala que la nueva edificación tendría una "huella menor" que el conjunto de las dos torres actuales: "Podría materializar su edificabilidad en altura, ya que en zona de Edificación Abierta, no existe número máximo de plantas".
Octubre de 2029
Aunque el derribo de las torres se decretó en 2017, lo cierto es que la Generalitat sigue buscando cómo proceder. El útlimo dato que se conoce es que la Comisión Judicial que preside el Tribunal Superior de Justicia de la Comunitat Valenciana (TSJCV) estableció octubre de 2029 como fecha para el inicio de la demolición. Hay que tener en cuenta que la administración autonómica tendrá que hacer frente a una cuantía importante, tanto para el derribo como para la indemnización que tendrá que pagar a los propietarios de sus viviendas, que ascienden a 320 en los últimos cálculos. De tal forma que el importe a hacer frente podría rondar los 100 millones de euros.

Responsabilidad
La responsabilidad de la ilegalidad de este edificio recayó en la Generalitat por la licencia otorgada el 29 de abril de 2005 por la Dirección General de Costas y Puertos de la Conselleria de Obras Públicas, dirigida en ese momento por el popular Rafael Blasco. La sentencia del Tribunal Supremo de 2012 fue aclarada por el TSJCV en 2017 y no había duda. Además del decreto de derribo, el auto también obligaba a la administración valenciana a indemnizar a todos los propietarios de las viviendas, plazas de garaje y zonas comunes por el precio de compra más un 20% adicional.
La demolición de lo construido es la consecuencia impuesta legalmente en el caso de la anulación de una licencia concedida con infracción de la normativa de la Ley de Costas, según la sentencia del tribunal valenciano en su momento. "Consideramos debe prevalecer los valores naturales y paisajísticos frente a un coste económico, aunque el mismo sea elevado al carecer de fuerza jurídica suficiente para enervar la ejecución de una sentencia firme", recogía en su auto de aclaración, insistiendo que no era "relevante" para su institución que se pueda volver a edificar.